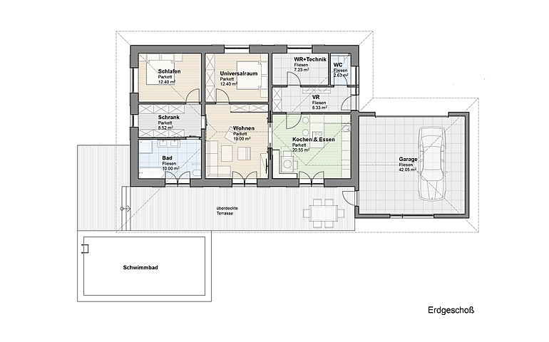
Dieser sehr kompakt entworfene Bungalow bietet für seine wenigen Quadratmeter überaus viel Platz. Optimal für eine Ein-Kind-Familie oder ein Paar das gerne Gäste empfängt.
Bei diesem Entwurf sind Wohnzimmer und Küchenbereich mit einer großen Schiebetüre trennbar um mögliche Gerüche oder möglicher Lärm von einem Ruhebereich abzuschirmen.
Der begehbarem Schrankraum und der Wirtschaftsraum bieten etwas überaus wichtiges in kleinen Gebäuden und zwar viel Stauraum. Eine großzügige Terrasse erstreckt sich über die gesamte Längsseite des Hauses und ist vom Koch- Essbereich vom Wohnzimmer und vom Badezimmer durch große Terrassentüren erreichbar. 
 
 
 
       
       
      
