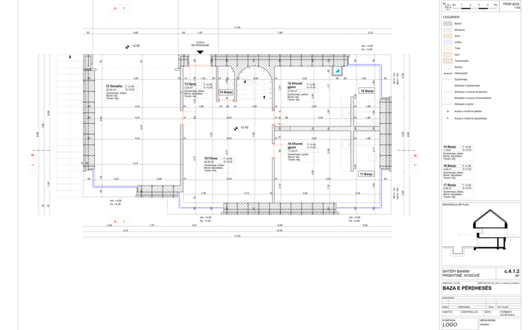
This project has gone through all three development phases: conceptual, preliminary, and final design. The final stage includes all detailed construction elements, ensuring clarity and precision in execution. Prefabricated components are utilized to enhance efficiency in both time and cost, without compromising durability and sustainability. The project is fully developed with comprehensive documentation, including structural details, sections, and visualizations, ready for precise implementation during construction.
 
 
 
       
       
       
       
       
       
      
