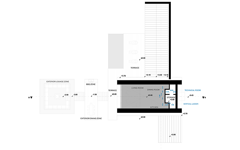
The building blends perfectly with the forest environment and it is made with the porpouse of extending the experience the woods has to offer. It can also be adapted to any type of terrain or site, on the city or not.
One of the features this building has is that on rainy days it will form curtains of rain. With a modern and simple design, from an infinity pool to a fire pit, the building offers all the activities and experiences you want in order to have a great time with family and friends.

