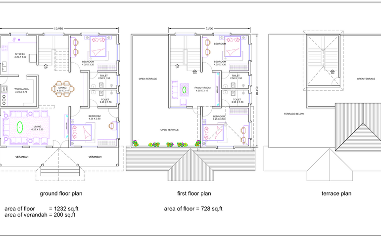
10mX11m size bungalow with Hall, kitchen, Dining and 4bedrooms with attached toilets
200.0m²
2 floors
4 bedrooms
4 bathrooms
Details
Building type
Detached house
Roof type
Flat roof
Recommended construction
Brick
Style
- Bungalow
Terrain elevation
Moderate inclined building site
Spaces
8 rooms
4 bedrooms
4 bathrooms
Terrace 250.0m²
Planning level
Level 2
L1
Draft, concept and design idea.
L2
Finished design including a sanitary concept.
L3
Includes installation concept suggestions.
L4
Includes high quality construction details.
Design price
1.000 €
excl. VAT
CAD archive file
IFC / BIM file
All images & visualizations
3 hours of customization
Rough cost estimation
Interested in realizing this house, and you would like to know how much it would cost to build this project? Request a rough cost estimation from a local building company for free.
Some of the cookies are required for the correct operation of our pages, while others are improving your user experience. We suggest accepting recommended settings, and here you can control and customize them.
If you want to know more about how we use cookies, please see our Cookie Policy.
These cookies are required to enable core site functionality like page navigation and access to secure areas of the website. The website cannot function properly without these cookies and can only be disabled by changing your browser preferences.
Analytical cookies allow us to recognise and to count the number of visitors to our website, to see how visitors move around the website when they are using it and to record which content viewers view and are interested in.
Marketing cookies are used to track visitors across websites. The intention is to display ads that are relevant and engaging for the individual user and thereby more valuable for publishers and third-party advertisers.