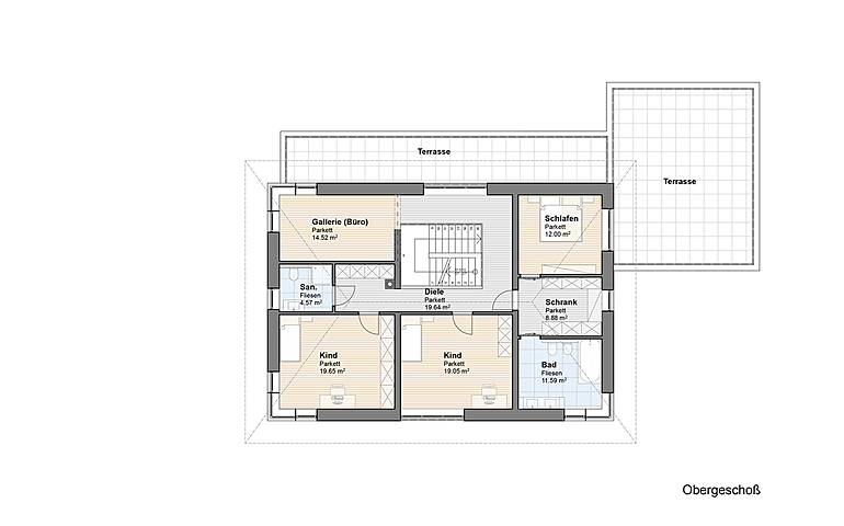
Through a vestibule, which is useful for a central European climate, one reaches the generously designed kitchen-living room with lots of space for meetings with family and friends. Directly connected to it is a spacious living room as a separate retreat. From the living room and the kitchen you reach a covered seating area on the terrace. A separately accessible universal room can be used as an office or guest room. The double garage is connected to the main house by a passage through a dirt lock. On the upper floor there are 2 bedrooms for children and a separate children's bathroom. The master bedroom is connected to the main bathroom by a walk-in closet. A further area can be used as a gallery, library or an additional office area.

