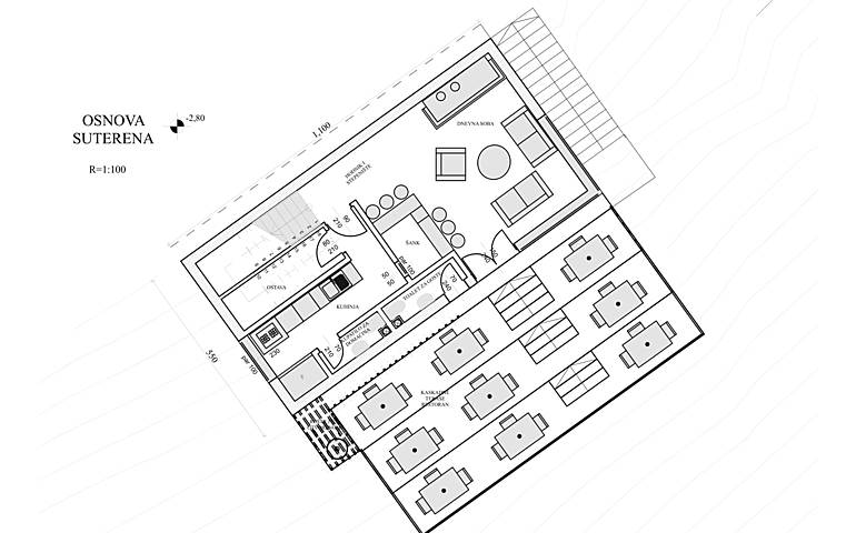
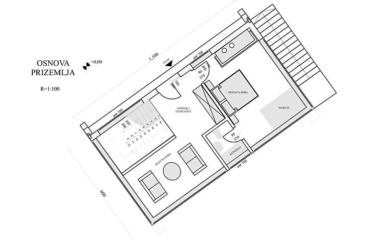
"House in the valley" is a house that is designed as a tourist offer for locations that have natural features. It was created for declining terrain and contains all the facilities that enable life in the building as well as business activities, mainly of a tourist nature.

